战车灵魂伴侣,半履带走天下,二战德军突击炮
第一次与突击炮合作的德国步兵,不仅会被它低矮的外形所吸引,并且对与之配套行进、棱角分明的半履带装甲车也会十分关注。1940年的法国战役中,德军展现了高超的战术水平,同时一些在日后的重大战役中大放异彩的新锐装备也粉墨登场,其中就包括当时还是以连队编制投入作战的突击炮。因厂家生产延误,与突击炮配套的指挥车和弹药输送车未能赶上法国战役,但是这也没有降低突击炮部队在首秀亮相中的作战效率。这些与突击炮配套的神秘车辆究竟有哪些呢?它们是如何帮助突击炮作战呢?让我们来看看这几款突击炮的装甲伴侣。
德军在突击炮开始计划生产时,与之配套的装甲车辆也在相应的研究中。为解决突击炮的观察指挥和弹药供应问题,德军高层考虑到需要研制专门的车辆,这也反映了德国人在装甲战术和车辆开发方面的高瞻远瞩。最终,德军将突击炮弹药输送车编号确定为Sd.Kfz.252,炮兵观测/指挥车编号确定为Sd.Kfz.253,这两种车型选定当时已经比较成熟的1吨半履带车底盘为基础,改进后的版本命名为D7p底盘,这同时也是德军Sd.Kfz.250半履带装甲车所使用的底盘。
■按照军方要求重新改进后的D7底盘,命名为D7p,该型底盘也是整个Sd.Kfz.250系列的通用底盘。
■D7p底盘的动力之源——迈巴赫42型发动机。
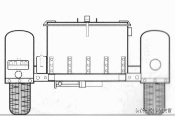
德军每辆突击炮本身的载弹量为44发,为了提高其持续作战效率,设计人员开发了具有一定装甲保护的Sd.Kfz.252弹药输送车跟随突击炮同步行动。Kfz.252外形独特,尤其是车辆后部采用大角度倾斜设计,节约钢材的同时还减小了侧面投影面积,可以提高车辆生存率。该车高度控制在1.8米,顶部设置有两个供乘员出入的舱门,内部空间较为紧凑。
■Sd.Kfz.252弹药输送车四视线图。
Kfz.252属于支援车辆,本身不会单独行动,所以没有像其他装甲车辆那样配备车载机枪,仅在左右两侧车体观察口下方保留射击口,乘员可以从内部使用武器向外射击。该车车体正面装甲厚度为18毫米,侧面和后部装甲厚度仅为8毫米,勉强可以防护弹片和步枪弹的直接射击,不过这些装甲都具有一定的倾斜角度,可以稍微增加一点防护效果。由于装甲贫瘠,只有初次与突击炮部队配合作战的步兵才会利用Kfz.252作为掩护——当Kfz.252乘员向他们解释完车内装载的物品后,步兵们就会在后续的战斗中自动与Kfz.252保持远距离,毕竟谁也不想被殉爆的弹药炸上天。
■从上方观察Kfz.252车体,前方是发动机舱门,车顶部为两个乘员舱门,后部是弹药舱门。
Kfz.252设计之时,三号突击炮装备的主炮还是L24短管75毫米炮,它的车内弹药箱结构只能为三突A-E型短身管主炮的炮弹使用。Kfz.252停产时间是在长身管突击炮还没有投入战场的1941年9月,所以该车并没有像代替它的Kfz.250/6那样细分为长管和短管突击炮专用弹药车。不过这也难不倒前线的维修人员,他们将Kfz.252内部的炮弹架进行一定改装后就可以继续为长身管突击炮服务。停产后的Kfz.252在各部队一直使用到损坏为止,到1945年还能看到它奔驰在前线的身影。从1940年6月开始生产到1941年9月最后一辆Kfz.252走下生产线,这种半履带弹药车一共生产了413辆。
■莫斯科战役时休整中的Kfz.252弹药车乘员,从打开的后舱门我们可以看到75毫米炮弹是垂直放置于车内。
■从Kfz.252车身内向突击炮补充弹药,这个过程需要突击炮乘员和弹药车乘员共同协力完成。
■这张照片拍摄于1942年11月,一辆Kfz.252为长身管的三号F/8型突击炮补充弹药。
Sd.Kfz.252突击炮弹药输送车相关数据:
车长:4.70米
车宽:1.95米
车高:1.8名
车重:5.73吨
最大速度:40公里/小时
最大行程:130公里
车组成员:2人
Kfz.252设计前卫但是并不讨人讨喜,空间狭小和毫无自卫能力是前线部队反馈的最大问题。为了简化生产和提高载弹量,德军高层提出直接使用Kfz.250半履带装甲车改装为新型突击炮弹药车,并命名为Sd.Kfz.250/6。
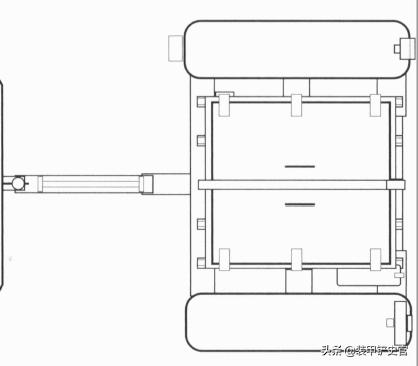
改装后的Kfz.250/6仍然保留车载MG34机枪用于自卫,原本车体内的乘员空间大部分改为固定炮弹箱,采用敞开式车体以方便搬运炮弹和弃车,乘员数依旧为2人。早期型的Kfz.250/6仍然为短管突击炮输送弹药,1942年装备长身管L43/L48主炮的突击炮投入服役后,通过改装的新型弹药箱可以装载长身管75毫米炮的弹药。装载炮弹型号的不同将Kfz. 250/6区分为A型和B型,A型的载弹量为70发,B型因弹体增长改变了装载方式,载弹量下降为60发。
■Kfz.250半履带装甲车侧视线图,该车的一款改型成为专职的突击炮弹药输送车。
■Kfz.250/6A型弹药输送车车厢,装载短身管突击炮炮弹。
■Kfz.250/6B型弹药输送车车厢,装载长身管突击炮炮弹。
■图中左侧为L24短身管75毫米炮炮弹,弹长507毫米,右侧为L48长身管75毫米炮炮弹,弹长748毫米。我们可以直观地对比两种弹药的长度差。
Sd.Kfz.250/6突击炮弹药输送车相关数据:
车长:4.56米
车宽:1.95米
车高:1.66米(不含武器)
车重:5.73吨
最大速度:40公里/小时
最大行程:130公里
车组成员:2人
为了发挥Kfz.252的最大效能,1941年1月魏格曼公司又投产了一款配套的弹药拖车来扩大炮弹运载量。这种拖车的编号是Sd Anh32/A,空载重量330千克,带弹最大重量780千克。拖车采购价格为668马克,弹药舱内分为4个舱室,每个舱室尺寸为长415毫米×宽400毫米×高410毫米,总载弹量36枚。当然,在前线实际使用时这种拖车并不会只用来拖炮弹,突击炮连的官兵们还会用它来拉许多其他的东西,比如每天的饭菜,毕竟弹药车的减震是最出色的。
■Sd Anh32/A弹药拖车三视线图。
■上两图为Sd Anh32/A弹药拖车舱门关闭和打开状态的实物照片,可见炮弹是垂直放置的。
在早期的突击炮部队编制里,严谨的德国人想要将指挥车和战斗车辆分开,以做到各司其职,这导致了Sd.Kfz.253炮兵观测/指挥车的诞生。该车最初是作为突击炮部队连排级指挥官座车的角色而设计的,在同时期的德军装甲部队也有类似的思维——基层装甲单位中配备有大量一号指挥坦克。
如果说弹药输送车在前线还可以找地方隐蔽一下,等待突击炮回来补充弹药,而Kfz.253作为连排长座车,就只能硬着头皮顶着薄弱的装甲和突击炮一起冲锋在前。Kfz.253不仅装甲厚度令人毫无安全感,而且也没有自卫武器,有些车组乘员在万般无奈之下只能自行加装机枪。该车在下发一线部队使用后,立刻遭到了突击炮部队官兵的一致反对:这种薄皮装甲车在残酷的炮战中只能依靠快速移动来进行自保,难以实现在一线的指挥任务。Kfz.253的靠前指挥功能很快被新装备的三号E型突击炮所代替,该车转而作为装甲炮兵观测车和通讯车辆一直服役到战争结束。从1940年3月到1941年6月,Sd.Kfz.253一共生产了285辆。
■Sd.Kfz.253炮兵观测/指挥车四视线图。
■从上方鸟瞰Kfz.253车体,前部与Kfz.252相同,但人员出入舱门改为圆形,以方便乘员进出和潜望镜的使用。
■作为指挥车辆,Kfz.253装备了大量电台进行通信,这使得狭小的车体内部更加拥挤。
■Kfz.253后部还保留着一个舱门方便乘员进出,车体右后侧的方槽是车内电台的天线座,不用时可以将天线放倒。
■1941年巴尔干战役期间,第197突击炮营第2连连长富尔中尉的座车,车组成员在这辆Kfz.253的车顶上架设了一挺MG08/15机枪作为自卫武器。
Sd.Kfz.253炮兵观测/指挥车相关数据:
车长:4.70米
车宽:1.95米
车高:1.8米
车重:5.78吨
最大速度:40公里/小时
最大行程:130公里
车组成员:3人
按照德国陆军对突击炮连编制的最初设定,连长和排长座车均为Kfz.253,每个突击炮排还包括2辆突击炮和1辆Kfz.252弹药输送车。经过战场考验和官兵的反馈后,1941年底更改后的突击炮连编制内取消了Kfz.253,直接使用突击炮担任连排长座车。1942年,每个突击炮连编制中的Kfz.252也被取消,更换为Kfz.250/6弹药输送车,不过正在使用中的Kfz.252弹药车会一直使用到损毁为止。
■1941年巴尔干战役期间德军突击炮连战斗车辆编制图,每连除了6辆突击炮,还装备4辆Sd.Kfz.253指挥车和3辆Sd.Kfz.252弹药输送车。
■1941年2月11日第197突击炮营第3连的全部车辆合影,完全展现了德军早期突击炮连的车辆编制:由近至远第一行为连部用车,第二行为各排的Kfz.253指挥车和通讯兵用摩托车,第三行是每个排各2辆突击炮(三个排共6辆),第四行是每个突击炮排的Kfz.252弹药输送车和小拖车,最后是突击炮连辎重单位的大量卡车。
德军高层设计专门的突击炮辅助车辆的初衷是好的,体现了德国人严谨实干的精神。但是这些车辆在实战中暴露出了明显的缺点,同时设计和生产种类繁杂的专用车辆占据了德军并不富裕的战争资源。在战争中后期,德军有意识地精简军用车辆设计和简化生产工艺,但最终也无法挽回战争的败局。
■Kfz.252弹药输送车为突击炮补充炮弹的彩绘作品。德军为发挥突击炮这种新式武器的作战效能,设计和制造了数款外观具有典型的德系装甲审美特色的专业辅助支援车辆,这些车辆都具有明显的缺点,但也并不能抹杀它们在战场上所发挥的积极作用。


